Project approved Alfama Lisbon Two-Bedroom Apartment for Renovation.
This property presents a rare opportunity to invest in a unique apartment in Lisbon’s historic Alfama district. Set within a pre-Pombalino building, the apartment comes with an approved project for refurbishment and extension, which will expand the usable space from 60 square meters to 103 square meters, blending modern amenities with historic charm.
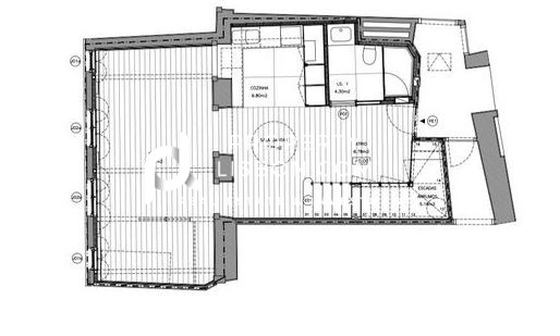
Positioned on the second floor, the current 60-square-meter layout features an open-space design that maximizes natural light. The proposed renovation plans aim to create a cohesive environment that includes two living rooms, a kitchen, and a bathroom, resulting in a functional and spacious living area.
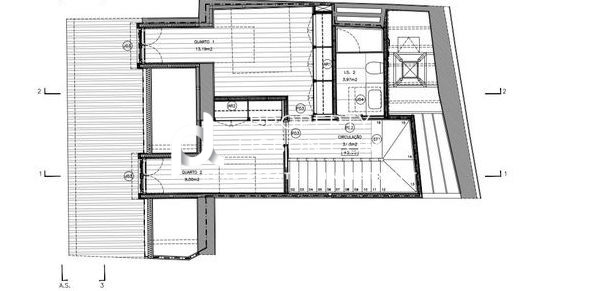
The approved extension introduces an additional 40-square-meter attic space, accommodating two comfortable bedrooms equipped with dormer windows that provide panoramic views of the River Tagus. This floor will also include a second bathroom, enhancing both privacy and convenience.
Located just a short walk from São Jorge Castle, the property enjoys a prime location with easy access to historical landmarks, public transportation, and a variety of traditional restaurants, allowing residents to immerse themselves in the vibrant atmosphere of Alfama.
This apartment is ideal for those seeking a living space that combines historical significance with modern living. It’s an opportunity not to be missed!
Property Features
- Great Price
- High Rental Demand
- Make it your own
- Project Approved
- Renovation project











